YY:MM:DD:HH:MM:SS:MSC
CRASH BOX
a gasc demolition project
vendredi 20 mai 2011

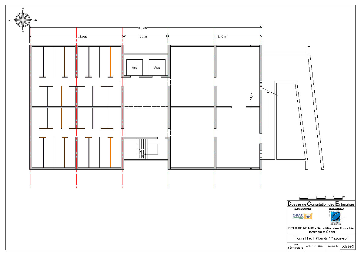
Plans d’affaiblissement des Tours G, H et I

français | english

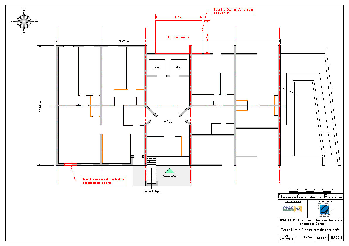
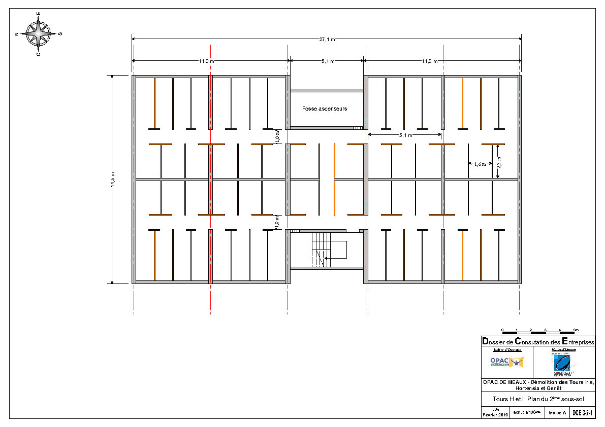
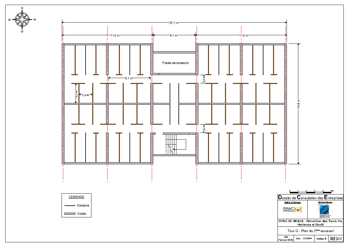
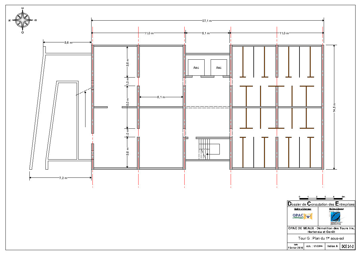
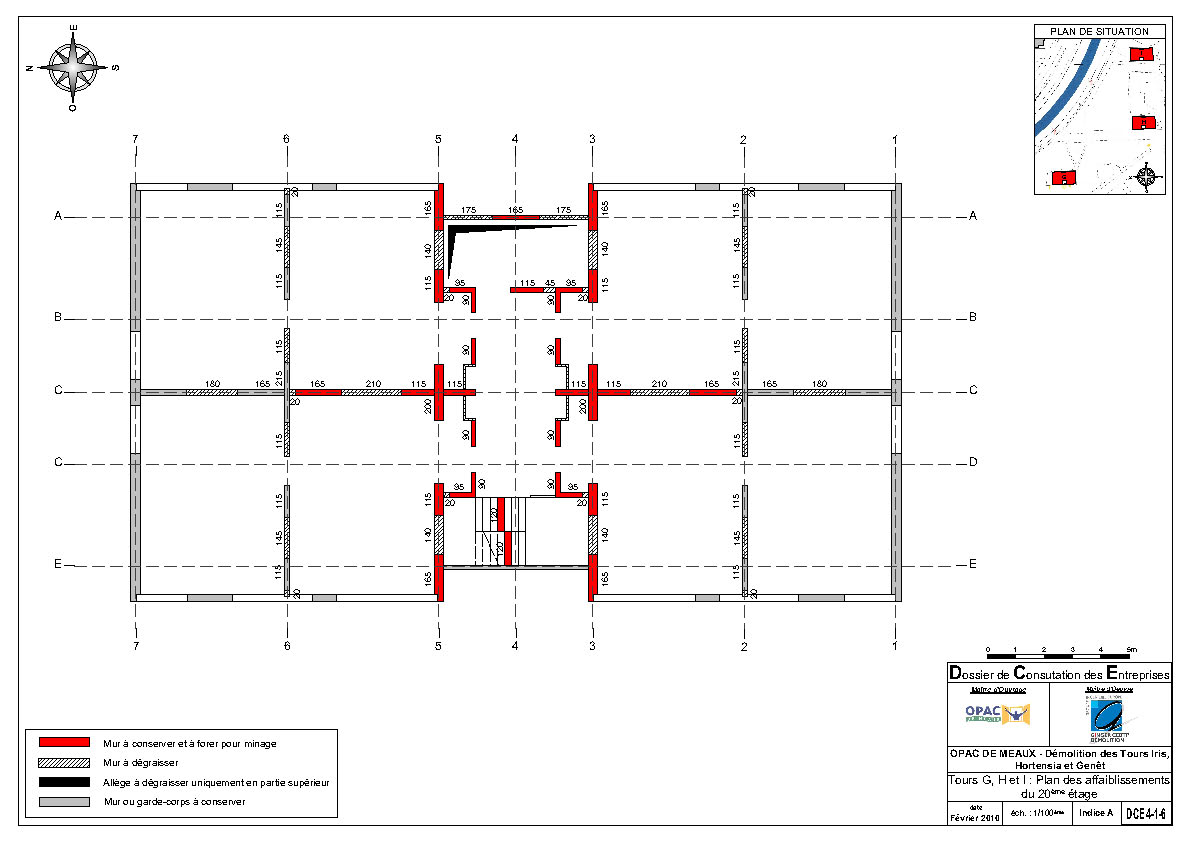
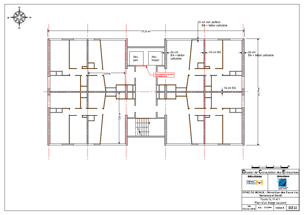
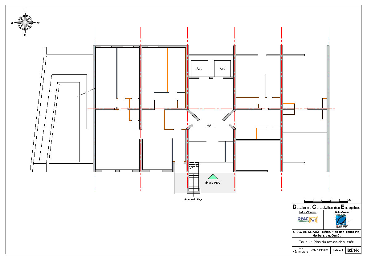
Les plans de préparation à la démolition des Tours Genêt, Hortensia et Iris (1er chantier d’expérimentation du projet Crash Box) sont disponibles à la consultation en ligne. À noter : le plan d’indication des niveaux minés (en page 15) et ceux, étage par étage chargé en explosifs, de leur affaiblissement mécanique. Documents GINGER-CEBTP DÉMOLITION.


Weakening plan of towers G, H et I

Preparedness plans for the demolition of the Towers Genet, Hydrangea and Iris (first experimental site of the project Crash Box) are available for consultation online. Note : The plan indicating the mined levels (page 15) and those, floor by floor loaded with explosives, their mechanical weakening. GINGER-CEBTP DEMOLITION documents.

plans meaux Page 09 plans meaux Page 08 plans meaux Page 06 plans meaux Page 07 plans meaux Page 05 plans meaux Page 04 plans meaux Page 03 plans meaux Page 02 plans meaux Page 01 plans meaux Page 16 plans meaux Page 15 plans meaux Page 14 plans meaux Page 13 plans meaux Page 12 plans meaux Page 11 plans meaux Page 10 plans meaux Page 17 plans meaux Page 18 plans meaux Page 19 plans meaux Page 20 plans meaux Page 21 plans meaux Page 22 plans meaux Page 23 plans meaux Page 24 plans meaux Page 25 plans meaux Page 26