Les premiers essais de captation vidéo à l’intérieur d’un foudroyage intégral auront lieu à St Étienne, le 24 novembre. Chantier inaugural du projet Crash Box, la démolition de la Tour Réservoir Plein Ciel est hautement symbolique. Sa destruction polémique trouve une forme de résonance dans l’expérimentation visuelle proposée par les crash box, à la fois objets résistants à la démolition et véhicules de la dissémination de l’explosion.
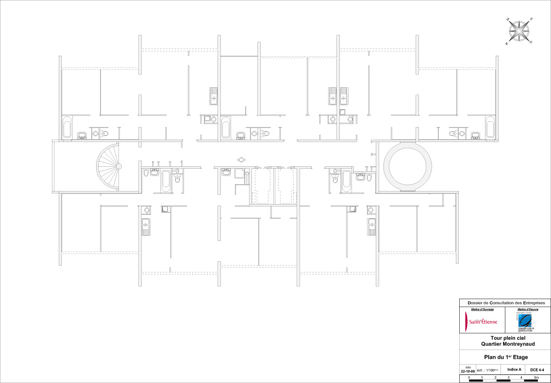
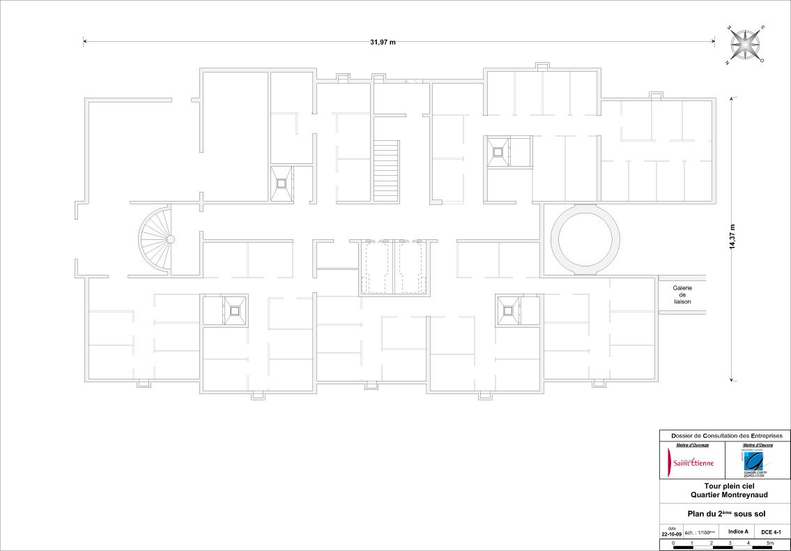
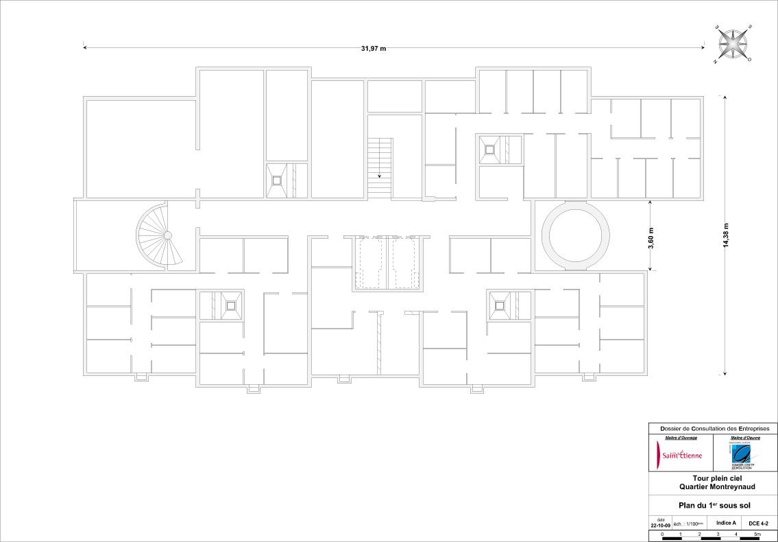
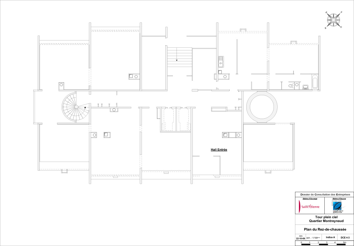
Les plans de préparation à la démolition de la Tour Réservoir Plein Ciel sont disponibles à la consultation en ligne.
Documents GINGER-CEBTP DÉMOLITION



































